
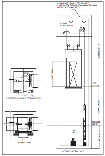
Machine Roomless elevator
Machine Roomless Elevators gathers together the excellent lift system and the research fruits of architectural adaptability. It has been independently researched and developed by a company. It adopts mature control technology and advanced design concepts that lead the trend, combining a superior performance permanent magnet synchronous and gearless drive system. It combines with the constructions to fully enhance the building’s aesthetics and values. It has very high-cost performance advantages, machine Roomless. The elevator is just like the eyes of the architecture. It thoroughly shows the construction characteristics.
- Light of low carbon
- LED illumination source


